
Gewerbefläche - Klagenfurt Zentrumsnähe
Gewerbefläche für Yoga, Massage, Therapie oder als Büro zu vermieten
Storytelling
Diese vielseitig nutzbare Immobilie eignet sich ideal für ein Yoga, Pilates, Gymnastik oder Massagestudio - ebenso gut aber auch als Büro.
Hier überzeugt die angenehme Atmosphäre: Große Fensterflächen lassen das Licht der Morgen- und Abendsonne in die Räume und schaffen ein warmes, freundliches Ambiente.
Der großzügige, helle Bereich bietet ideale Voraussetzungen für Gruppenangebote oder gemeinschaftliches Arbeiten. Für Einzelbehandlungen oder Bürotätigkeiten steht ein eigener Raum (mit Waschbecken) zur Verfügung.
Zur Ausstattung zählen außerdem zwei separate Toiletten, zwei separate Duschen und eine kleine Küchenzeile.
Die Räume ermöglichen eine funktionale und gleichzeitig angenehme Arbeitsumgebung - ideal für ausgewählte Gesundheitsberufe (sofern keine Barrierefreiheit erforderlich ist) , kreative Tätigkeiten oder klassische Büroarbeit.
Daten & Fakten
Lage: Rosentalerstraße, unmittelbare Stadtnähe
Nutzfläche: ca.87m²
Mit Westterrasse
Inklusive Keller
Ost-westseitige Ausrichtung
Geschoss Hochparterre
Der Zugang erfolgt über die Westterrasse (nicht barrierefrei, kein Lift)
Heizung: Fernwärme
Warmwasser: Boiler
Baujahr: Laut Energieausweis: ca. 1950, ca. 2010 generalsaniert
Energieausweis: HWB-ref 43,5kWh/m²a
3 Jahresbefristung
Parkplatz: Derzeit sind 2 Parkplätze im Innenhof zu je netto € 38,- in der Miete enthalten. In naher Zukunft wird der Bau einer größeren Wohnanlage vor der Gewerbefläche erwartet. Während der Bauphase werden zwei alternative Parkplätze in unmittelbarer Nähe zur Verfügung gestellt. Nach Fertigstellung der Wohnanlage werden anstelle der zwei Außenabstellplätze zwei Tiefgaragenparkplätze angeboten, jeweils mit einem Aufpreis von € 32,- netto (dh. Gesamtaufpreis € 64,- netto zzgl. 20% MwSt.). Bei Bedarf könnte könnte auch ein Außenabstellplatz bestehen bleiben und nur ein zusätzlicher TG-Platz angemietet werden.
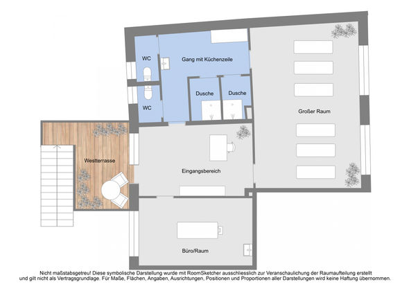
Raumaufteilung:Heller, freundlicher Eingangs- und Empfangsbereich, separater westseitiger Raum mit Waschbecken, großer lichtdurchfluteter straßenseitiger (Osten) Raum, Bereich mit 2 Dusche, 2 Toiletten und einer kleinen Küchenzeile, Westterrasse
Kosten
Hauptmietzins netto: € 625,--
Betriebs- und Heizkostenakonto netto: € 200,10
Gesamtmonatsmiete netto: € 825,10
zzgl. 20% Mehrwertssteuer: € 165,02
Gesamtmonatsmiete brutto: € 990,12
Kaution 3 Bruttomonatsmieten
Maklerhonorar bei 3 Jahresbefristung: 2 Bruttomonatsmieten zzgl. 20%MwSt , laut aktueller Immobilienmaklerverordnung.
Mietvertragsgebühr laut Nebenkostenübersicht: 1 % des auf die Vertragsdauer entfallenden Bruttomietzinses (inkl. USt.), höchstens das 18-fache des Jahreswertes, bei unbestimmter Vertragsdauer 1% des dreifachenJahreswertes

Lieber Interessent, liebe Interessentin,
wir sind verpflichtet Sie im Voraus über Ihre Verbraucherrechte aufzuklären bzw. Ihnen bereits vor Kontaktaufnahme alle Informationen und Unterlagen zur Verfügung zu stellen. Daher bitten wir Sie, sich das Video (ca. 2 Minuten ) anzusehen. Die im Video erwähnten Unterlagen finden Sie unten stehend.















